Porzione di bifamiliare in vendita

Verano Brianza, Via Comasina
€ 285.000
Prezzo aggiornato
5 locali 5 locali
200 Mq 200 Mq
2 bagni 2 bagni

Porzione di bifamiliare in vendita

Verano Brianza, Via Comasina

Descrizione annuncio

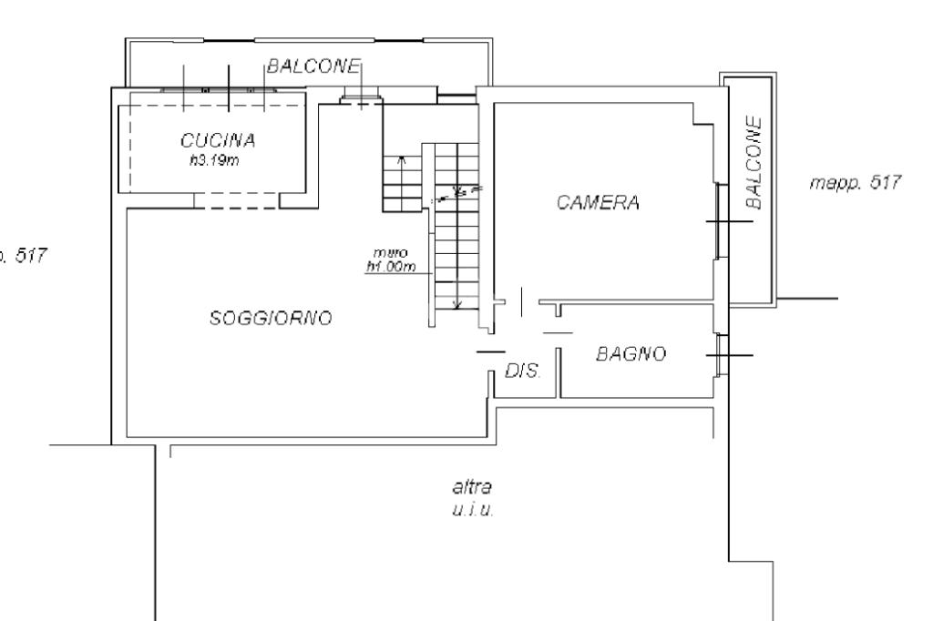
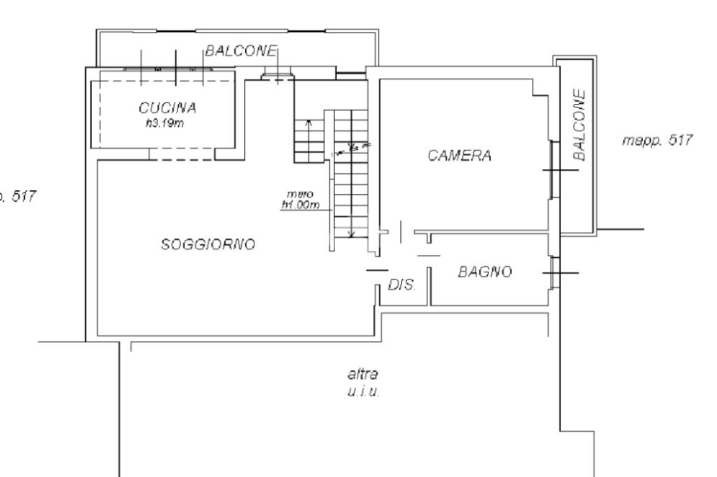
A Verano a metà di una via privata a fondo chiuso e vicino alla SS36, proponiamo una porzione di bifamiliare libera su 3 lati con giardino privato

L'immobile è così composto: cantina al piano terra. Ingresso con scalinata che ci porta al piano primo dove troviamo la zona giorno con cucina a vista fornita di balcone, primo bagno finestrato e ampia camera da letto con balcone. Al piano primo abbiamo il secondo bagno finestrato, 3 camere da letto di cui una completa di terzo balcone e un ampio ripostiglio.

L'area esterna è contornata dal giardino privato completo di una tettoia attualmente sfruttata come posto auto coperto.

Vi invitiamo a cliccare mi piace sulla nostra fanpage @tecnocasa_veranobrianza per essere aggiornati su tutte le nostre proposte immobiliari.

Ogni agenzia ha un proprio titolare ed e' autonoma - Le presenti informazioni non costituiscono elemento contrattuale.

Mostra tutto

Nelle vicinanze

Trasporto pubblico Trasporto pubblico
Via Donizetti, 56 (Carate Brianza)
Via Donizetti, 56 (Carate Brianza)
700 m
Via Donizetti, 47 (Carate Brianza)
Via Donizetti, 47 (Carate Brianza)
840 m
Carate-Calò
Carate-Calò
2,5 Km
Ricariche auto elettriche Ricariche auto elettriche
MediaWorld Giussano
860 m
MediaWorld Giussano Bis
910 m
Krealpool SRL
1,2 Km
In's Mercato
2,5 Km
Scuole Scuole
Scuole
590 m
Fondazione In-Presa Emilia Vergani
1,2 Km
Scuola Elementare e Liceo Don Carlo Gnocchi
1,4 Km
Istituto di Istruzione Superiore Leonardo da Vinci
1,4 Km
Scuola elementare "Ada Negri"
1,4 Km
Farmacia Farmacia
Farmacia
1,2 Km
Farmacia Gatti
1,3 Km
Farmacia Comunale Birone
1,3 Km
Farmacia Taborelli
1,4 Km
Farmacia Agliate
1,5 Km
Ospedali Ospedali
policlinico di Monza
450 m
Bianalisi s.r.l. Analisi Mediche
1,2 Km
Ospedali
1,5 Km
Ospedale Carlo Borella
1,6 Km
Ospedale Vittorio Emanuele III
2,2 Km
Supermercati Supermercati
Supermercati
530 m
EuroSpin
900 m
Esselunga di Paina
1,1 Km
Lidl
1,2 Km
Conad
1,2 Km
Negozi Negozi
La Ila
1,1 Km
Eurospin
1,2 Km
Moda Lina
1,2 Km
L'Antico Forno
1,4 Km
Mascheroni Sportswear
1,5 Km
Bar Bar
Bar Piazzetta del campo
300 m
La vergine
370 m
Bar
470 m
Blue bar
1,2 Km
Mystic Burger
1,2 Km
Ristoranti Ristoranti
Da Arrigo
190 m
Ristorante del centro
280 m
Mr Brown Restaurant
340 m
Flo Pizzeria
1,1 Km
Il Ritrovo
1,2 Km
Mostra tutto

Caratteristiche

Rif.:
61135779
Piano:
2 di 3 (Piano su più livelli)
Posti auto:
1
Balconi:
3
Camere da letto:
4
Arredamento:
Assente
Mostra tutto
Prezzo Prezzo
€ 285.000
Rata mutuo Rata mutuo
€ 1.343 / mese
Spese annue Spese annue
€ 0
Proponi il tuo prezzoProponi il tuo prezzo

Classe Energetica

G
G
G
G
G
G
G
G
G
EP invernale del fabbricato:
EP estiva del fabbricato:
Anno di costruzione:
1990
Riscaldamento:
Autonomo
Tipo impianto:
A radiatori
Tipo alimentazione:
Metano

Prezzo ridotto di €1 (5%%)

Ti interessa visionare l'immobile?

Fissa un appuntamento  Fissa un appuntamento

Richiedi informazioni

Clicca su Leggi per aprire l'informativa
* Questi campi sono obbligatori

Calcola il tuo mutuo

Semplice e senza impegno
Anticipo

( % )
Mutuo

( % )

pochi semplici passi

inserisci i tuoi dati
Questionario completato
Grazie per aver richiesto un appuntamento senza impegno con un nostro Consulente del Credito e Assicurativo.

Hai inserito correttamente tutti i dati necessari e a breve riceverai una e-mail con un link da convalidare per inviare i tuoi dati.
Affiliato
Tecnoverano Snc
Via Mario Preda, 2/B 20843 Verano Brianza (MB)

Il nostro staff


  • Francesco De Biasi
    Affiliato

  • Rosanna Di Paolo
    Coordinatrice

  • Sara Favalli
    Responsabile
Via Mario Preda, 2/B 20843 Verano Brianza (MB)
Zona: Verano Brianza
Mostra su mappa
Affiliato
Tecnoverano Snc
Via Mario Preda, 2/B 20843 Verano Brianza (MB)

2026 Tecnocasa Franchising S.p.A. - P. IVA 08365160152 - Via Monte Bianco 60/A 20089 Rozzano (MI). Ogni agenzia ha un proprio titolare ed è autonoma. Privacy policy | Policy utilizzo | Cookie policy