Bilocale in vendita

Giussano, Via Dante Aligheri
€ 120.000
2 locali 2 locali
100 Mq 100 Mq
1 bagno 1 bagno

Bilocale in vendita

Giussano, Via Dante Aligheri

Descrizione annuncio

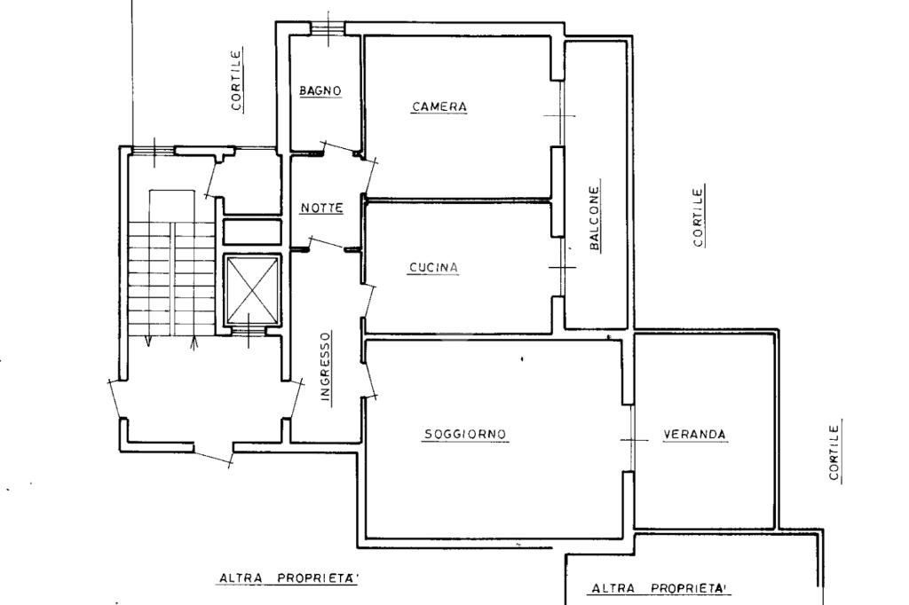
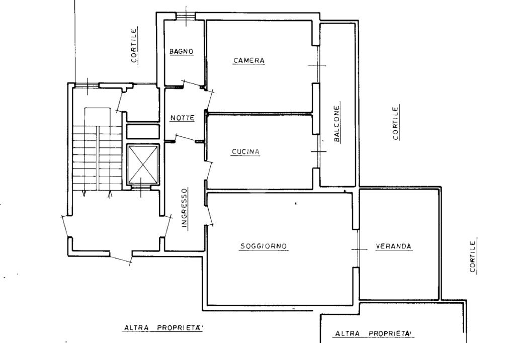
BILOCALE DA RISTRUTTURARE CON TERRAZZO

In centro a Robbiano (frazione di Giussano), proponiamo in vendita un favoloso bilocale da ristrutturare al piano primo di un condominio fornito di ascensore.

L'immobile si presta per essere trasformato in un trilocale data la generosa metratura ed è così composto: ingresso, soggiorno con terrazzo vivibile completo di veranda, cucina abitabile, bagno finestrato con vasca e camera da letto fornita di balcone dal quale si ha accesso anche dalla cucina.

Completano la soluzione un'enorme cantina di 33mq al piano interrato ed un box singolo fuori terra al costo di € 15.000

Vi invitiamo a cliccare mi piace sulla nostra fanpage @tecnocasa_veranobrianza per essere aggiornati su tutte le nostre proposte immobiliari.

Ogni agenzia ha un proprio titolare ed e' autonoma - Le presenti informazioni non costituiscono elemento contrattuale.

Mostra tutto

Nelle vicinanze

Trasporto pubblico Trasporto pubblico
Arosio
Arosio
2,5 Km
Mariano Comense
Mariano Comense
3,0 Km
Trasporto pubblico
250 m
Z232/Z242 - CARATE B. Agliate-M. Ignoto 17
Z232/Z242 - CARATE B. Agliate-M. Ignoto 17
1,9 Km
Carugo-Giussano
Carugo-Giussano
1,9 Km
Ricariche auto elettriche Ricariche auto elettriche
MediaWorld Giussano Bis
1,1 Km
MediaWorld Giussano
1,1 Km
Krealpool SRL
2,3 Km
Cinelandia Arosio
2,7 Km
Scuole Scuole
Scuola primaria "Don Beretta"
270 m
Istituto di Istruzione Superiore Amedeo Modigliani
520 m
Scuola primaria "Gabrio Piola"
1,3 Km
Scuola secondaria di primo grado "Alberto da Giussano
1,3 Km
Scuola Primaria "San Filippo Neri"
1,9 Km
Farmacia Farmacia
Farmacia Rizzitelli
440 m
Farmacia Comunale
1,8 Km
Farmacia Comunale Birone
1,8 Km
Farmacia Agliate
1,9 Km
Farmacia Fois
2,3 Km
Ospedali Ospedali
Ospedale Carlo Borella
1,1 Km
policlinico di Monza
2,4 Km
Ospedali
2,8 Km
Bianalisi s.r.l. Analisi Mediche
2,8 Km
Supermercati Supermercati
Sigma
410 m
Lidl
830 m
Carrefour
1,0 Km
Supermercati
1,9 Km
U2 Supermercato
2,3 Km
Negozi Negozi
Medlar's
350 m
Mascheroni Sportswear
780 m
La Matta
1,0 Km
Panificio Gatti
2,1 Km
da Antonio
2,2 Km
Bar Bar
Bar Caffetteria Luciano
310 m
Chocolat
430 m
Darkò Cafè
620 m
Bar
660 m
Oasi caffè
1,1 Km
Ristoranti Ristoranti
Pizza Drive
390 m
Pizzeria La Taverna
450 m
Oro ristorante
620 m
Yu Tai
930 m
Il veliero
1,0 Km
Mostra tutto

Caratteristiche

Rif.:
61178007
Piano:
1 di 4 con ascensore (Piano basso)
Box:
1
Balconi:
1
Terrazzi:
1
Camere da letto:
1
Mostra tutto
Prezzo Prezzo
€ 120.000
Prezzo box Prezzo box
€ 15.000
Rata mutuo Rata mutuo
€ 570 / mese
Spese annue Spese annue
€ 2.000
Proponi il tuo prezzoProponi il tuo prezzo

Classe Energetica

G
G
G
G
G
G
G
G
G
EP invernale del fabbricato:
EP estiva del fabbricato:
Anno di costruzione:
1970
Riscaldamento:
Centralizzato
Tipo impianto:
A radiatori
Tipo alimentazione:
Metano

Ti interessa visionare l'immobile?

Fissa un appuntamento  Fissa un appuntamento

Richiedi informazioni

Clicca su Leggi per aprire l'informativa
* Questi campi sono obbligatori

Calcola il tuo mutuo

Semplice e senza impegno
Anticipo

( % )
Mutuo

( % )

pochi semplici passi

inserisci i tuoi dati
Questionario completato
Grazie per aver richiesto un appuntamento senza impegno con un nostro Consulente del Credito e Assicurativo.

Hai inserito correttamente tutti i dati necessari e a breve riceverai una e-mail con un link da convalidare per inviare i tuoi dati.
Affiliato
Tecnoverano Snc
Via Mario Preda, 2/B 20843 Verano Brianza (MB)

Il nostro staff


  • Francesco De Biasi
    Affiliato

  • Rosanna Di Paolo
    Coordinatrice

  • Sara Favalli
    Responsabile
Via Mario Preda, 2/B 20843 Verano Brianza (MB)
Zona: Verano Brianza
Mostra su mappa
Affiliato
Tecnoverano Snc
Via Mario Preda, 2/B 20843 Verano Brianza (MB)

2026 Tecnocasa Franchising S.p.A. - P. IVA 08365160152 - Via Monte Bianco 60/A 20089 Rozzano (MI). Ogni agenzia ha un proprio titolare ed è autonoma. Privacy policy | Policy utilizzo | Cookie policy